La estructura prefabricada de este post está diseñada para tener una mejor integración en un entorno natural. Su acabado exterior está realizado completamente en madera, y con laterales curvos que la hacen inconfundible. Es EcoPerch, una cabaña de 36.5m2 (superficie útil) con capacidad para cuatro personas.
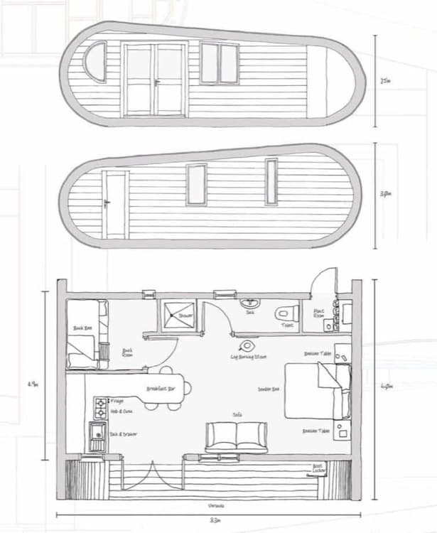
Esta construcción prefabricada se puede colocar tanto en una plataforma entre árboles, como en el suelo. Se diseñó de acuerdo con la normativa británica sobre caravanas y casas móviles. La fabricación en taller de esta cabaña requiere de 6-8 semanas, y su transporte se hace por carretera (en varios módulos). Tan solo necesita 5 días para ser montada en el sitio. Dentro cuenta con una amplia sala con cama grande, sala de estar, y cocina con barra para desayunar. Dentro vemos también un pequeño dormitorio con camas literas; un cuarto de baño con ducha; y un pequeño espacio de almacenaje accesible desde la fachada trasera.


EcoPerch es además una casa hecha bajo los principios de sostenibilidad, según las siguientes especificaciones:
- Dispone de gran aislamiento.
- Ventanas de doble acristalamiento.
- Iluminación de bajo consumo con tecnología LED.
- Calentador de agua eficiente.
- Opcionalmente puede equiparse con cubierta verde (sedum).
- También puede funcionar desenchufada de los servicios públicos mediante placas fotovoltaicas.
- Es posible montarle una instalación para la recogida de aguas pluviales.
- Puede llevar inodoro de compostaje.
Por sus dimensiones y características, vemos a EcoPerch como una estructura bastante versátil. Aparte de servir para negocios de alojamiento rural, encaja perfectamente como casa de vacaciones para clientes particulares. Incluso puede funcionar como extensión para invitados en el jardín de una casa.

La casa prefabricada EcoPerch es un producto de la firma Blue Forest. Se trata de una empresa famosa por sus lujosas casas de árboles.











