«Construcción de madera, con tejado a dos aguas, y sin muchos lujos,..» esa podría ser la descripción más común para una cabaña. En esta ocasión no se trata de ningún edificio prefabricado, sino de una cabaña de madera pensada para que tuviera poco impacto ambiental. Está situada en un bosque de Mazama, un pequeño pueblo del Valle de Methow, en la parte este del Estado de Washington (EE.UU.). Ese lugar se ubica a pocos kilómetros de la frontera con Canadá.

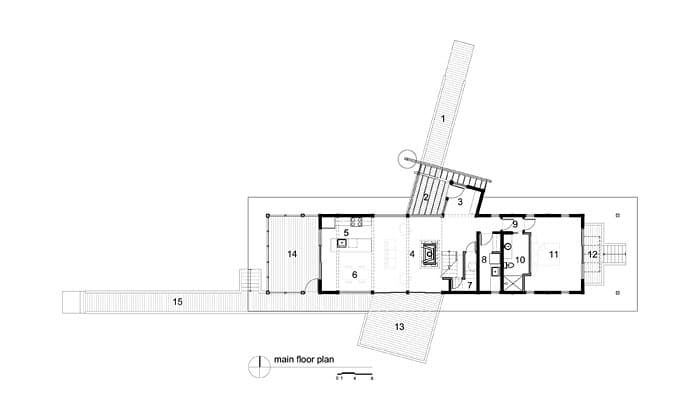
El impacto de este edificio se ha reducido construyéndolo 1.5 metros por encima del terreno. Para ello se utilizó un conjunto de pilares de hormigón, provocando que su acceso se tenga que hacer a través una pasarela. Esta vivienda es también interesante porque su diseño es muy sencillo. Tiene dos plantas, aunque la mitad de su superficie la ocupa un salón de doble altura (con cocina y comedor) presidido por una chimenea. Una escalera conduce a unos dormitorios bajo la cubierta inclinada, pero el dormitorio principal está en la planta baja.
Según se puede ver en el plano de planta, el salón cuenta con dos terrazas exteriores, una de ellas está vincula a la pasarela de entrada. La otra pasarela que se puede ver conduce a un claro en el bosque cubierto de hierba.


El proyecto de esta cabaña de madera fue realizado por Balance Associates Architects.





















