ARK es una cabaña prefabricada que está diseñada para utilizarse como un hogar móvil. Esa característica facilita a sus ocupantes disfrutar de la naturaleza, en el lugar que quieran.

Hogar móvil prefabricado, alimentado por turbina eólica
Ante la presión diaria a la que mucha gente se ve sometida, nada mejor que permitirse una escapada. Huir del estrés, en cierto modo supone volver a nuestras raíces, al campo. Es allí donde se encuentra el verdadero descanso. Esa escapada será más fácil llevarla a cabo en una de estas cabañas prefabricadas, que es para lo que fueron creadas.
Su diseño resulta bastante atractivo para quienes exploten algún negocio relacionado con el turismo rural, también denominado glamping. Aunque debido a su equipamiento, probablemente entraríamos ya en una categoría más lujosa. Hay que aclarar que no se trata de una casita construida sobre un remolque. Aquí la movilidad viene dada por la facilidad de transportar dicho módulo por carretera.
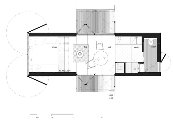
En total, tiene una superficie útil (sin terrazas) de 28m2. Es un espacio único donde se organizan todas las funciones. En el centro está la zona para comer, en un extremo la cama, y en el opuesto la cocina y el cuarto de baño. El frontal del dormitorio está completamente acristalado. En cada lateral existen puertas plegables acristaladas, que sirven de acceso a una terraza exterior. Estas terrazas son unos paneles de listones de madera que, al abatirlos sobre la fachada, sirven para cerrar por completo la cabaña. Este mismo sistema se ha utilizado para las ventanas del baño y dormitorio, pero se abaten según un eje vertical.

Acabados, características técnicas y sostenibles
La fachada está revestida de tablas de madera, pintada con tres capas de aceite negro. La cubierta es de caucho y chapa. Todo el interior (paredes, techo, y suelo) es de madera tratada con bioplate. El mobiliario es de diseño (también de madera), con tapizados en cuero y tela. Un panel de vidrio templado se ha colocado justo debajo de la chimenea.
Aparte de la chimenea de leña, existe un sistema de calefacción eléctrico adicional. La casa viene con un tanque de 2m3, para el agua potable. Además recoge y filtra el agua de lluvia. Las aguas residuales están resueltas de tres maneras diferentes: evacuando a una red de alcantarillado; mediante tanque séptico; con wc químico.
ARK está preparada para funcionar con un aerogenerador de 700w, aunque el fabricante no comenta nada sobre el almacenamiento de energía.
Gracias a sus gruesas capas de material aislante (20 – 15 cm), esta casita de madera resulta bastante eficiente energéticamente.
Hay más información de este hogar móvil en la web de ARK Shelter.










