Este proyecto lleva por nombre Studio 19. Consistía en diseñar, documentar, y construir dos casas prefabricadas, una de cuatro dormitorios, y otra de dos. Debían utilizarse como viviendas sociales en Henderson (Auckland, Nueva Zelanda). El diseño se ajusta al estilo de vida de sus ocupantes, permitiendo la actividad al aire libre, con un buen comportamiento solar pasivo, y haciendo uso de materiales sostenibles y saludables.

Casa de 4 dormitorios
La casa de cuatro dormitorios utiliza 109m2, repartidos en dos volúmenes ligeramente separados, dejando la entrada en el espacio que hay entre ellos. Cada módulo tiene una planta rectangular de aproximadamente 5 metros de ancho. En uno está el salón, comedor, y cocina, mientras que en el segundo están los cuatro dormitorios, con un estudio a la entrada. Solo hay un cuarto de baño, pero cada uno de sus elementos se puede utilizar de forma independiente.

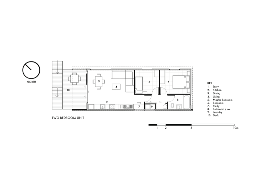
Casa de 2 dormitorios
La vivienda de dos dormitorios se ha ajustado en una superficie de 57.6m2, solamente necesita un módulo, pero más alargado. Hay una sala multifuncional (salón, comedor, cocina, y estudio) con acceso al fondo a las dos habitaciones. En este modelo el cuarto de baño es tradicional.
Características comunes
Ambas casas tienen una terraza justo delante del salón.
Estas viviendas prefabricadas cuentan con un aislamiento que está muy por encima de las viviendas convencionales. Presentan un revestimiento exterior metálico de fácil mantenimiento, y un acabado liso de madera en el interior. Su construcción se ha realizado con paneles estructurales aislados (SIP), tanto para el techo como las paredes, manteniendo un diseño modular que pueda adaptarse a otros lugares.
Los muebles de cocina y baños, se han diseño expresamente para la ocasión, con paneles de madera cortados con tecnología CNC. Gracias al proceso prefabricado, el coste de este proyecto es más reducido (1.400$ por metro cuadrado), y tiene menos desperdicio de materiales.

Este proyecto lo hizo el estudio Strachan Group Architects (SGA) en colaboración con estudiantes de la Escuela de Arquitectura de la Universidad Unitec (Nueva Zelanda). Se hizo para la VisionWest Community Trust, una organización sin ánimo de lucro. Fotos de Jackie Meiring.











