Esta moderna cabaña está en Alpine Meadows (California), una pequeña localidad ubicada a unos 1.980m de altitud. Cerca hay una estación de esquí que lleva el mismo nombre (a ocho kilómetros del Lago Tahoe). En ese lugar hay unas impresionantes vistas a Sierra Nevada Mountains, las cuales el cliente deseaba aprovechar desde cada una de las habitaciones. Pero la Cabaña Alpine Meadows es también una casa solar.

Como las mejores panorámicas se obtienen hacia el sur, el edificio adopta una orientación que sigue el eje este-oeste. Eso permite que todas las estancias tengan ventanas en la fachada más soleada. De esta manera se consigue además una posición óptima para la instalación solar (a colocar en el tejado), formada por unos 55m2 de paneles fotovoltaicos y térmicos. Dicha instalación solar tiene capacidad para generar la energía y agua caliente que esta casa de campo necesita.
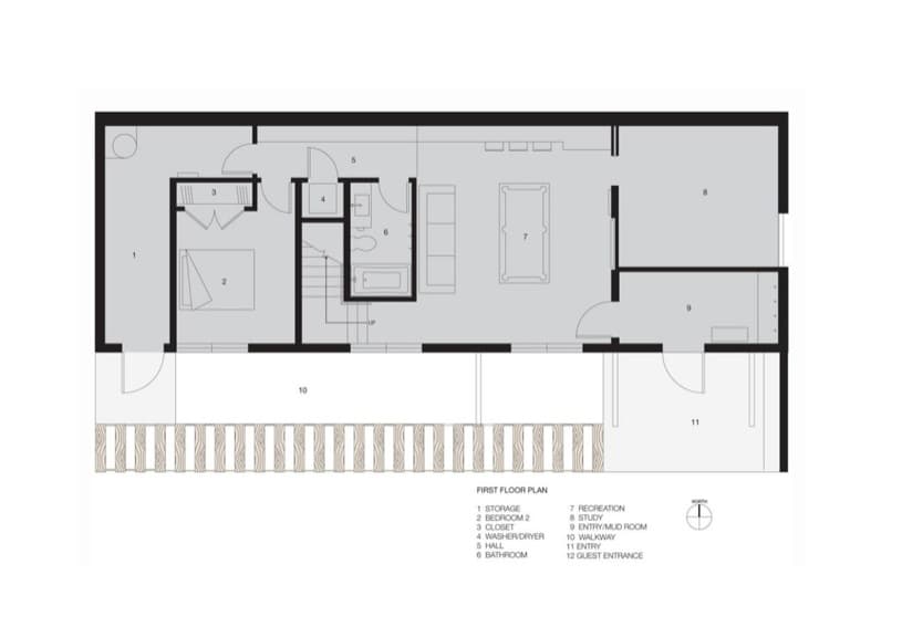
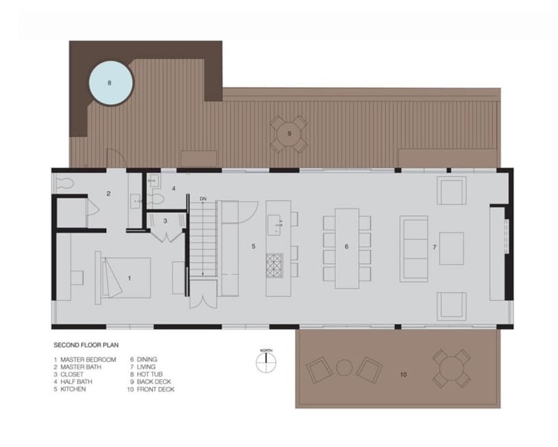
El acceso se realiza por el nivel inferior, que tiene las características de una planta de semisótano. Esto es así porque el edificio está construido en una ladera. En este piso encontramos una sala dedicada al entretenimiento, un dormitorio, sala de estudio, almacén, y un cuarto de baño. La planta superior contiene el dormitorio principal (con baño propio), un aseo, y un gran espacio para el comedor-cocina y sala de estar. Esta zona de la casa está más acristalada que el resto, adquiriendo un gran comportamiento solar pasivo, ayudado por los suelos de hormigón. Esta estrategia permite ganar un calor extra en los meses de invierno. Durante el verano, la temperatura se regula mediante el uso de la ventilación natural cruzada.

Este proyecto fue llevado a cabo por la oficina de CCS Architecture.











