Esta vivienda prefabricada es continuación de otra perteneciente a la época de la Gran Depresión, por la Tennessee Valley Authority. Es una casa que, en aquellos años difíciles, innovó incorporando por primera vez la electricidad y la calefacción en esa parte de los Estados Unidos. La Universidad de Tennessee construyó una versión adaptada a unos requerimientos más sostenibles, y la llamó Nueva Casa Norris.

Esta vivienda viene con agua caliente solar, recogida de aguas pluviales, y muchas más características que la hacen merecedora de una certificación LEED Platino. Pero además, la casa sirvió como laboratorio para medir su eficacia. Se estudió el sistema energético, la iluminación natural, aparte de la calidad del aire. Posee un innovador método para filtrar y tratar las aguas grises y pluviales, empleando un jardín similar al que ya vimos en la casa WaterShed (ganadora del Solar Decathlon 2011).
New Norris House
El vídeo que hemos incluido es un buen tour para ver cómo es por dentro la Nueva Casa Norris. Viene a demostrar que una casa prefabricada no tiene por qué renunciar a una calidad excelente en sus acabados. Nos ha gustado particularmente la carpintería, y la disposición y formatos de huecos. Destaca la ventana horizontal de la cocina, y la más grande que sirve para iluminar el comedor. Hay que señalar también que el suelo es de madera de roble recuperada.
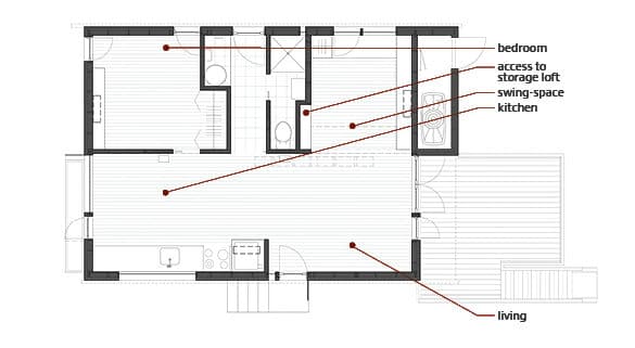
Los 71m2 del edificio dan para un sala amplia, que incluye la zona de estar, cocina y comedor. Este espacio adquiere una altura considerable hasta el techo inclinado que forma su cubierta. Junto al salón, la casa tiene un espacio con dos escritorios. Una escalerilla de madera lleva hasta un altillo, el cual se puede utilizar como segundo dormitorio, y que queda justo encima del dormitorio principal. El altillo está bien iluminado, y justo encima del salón se ha dispuesto un lucernario.
Había más información sobre la New Norris House: en su sitio oficial.
Preciosísima y práctica…felicidades.!!