Liina: casa para 5 personas en 6 horas

5
485

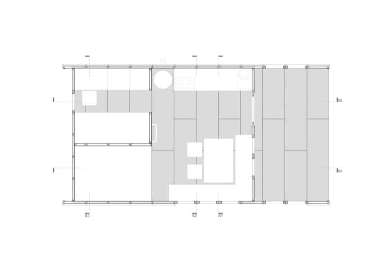
Para analizar el proyecto de esta casa, es preciso hacerlo con una mirada diferente. Lo primero que hay que saber es que fue planteado para servir como refugio en situaciones de emergencia. Tiene una capacidad para cinco personas, y una durabilidad prevista de aproximadamente 5 años. Pero lo más importante de su diseño es que se transporta en paquetes planos, metidos en un contenedor estándar. Una vez en su destino, se puede montar con facilidad sin el empleo de herramientas eléctricas (detalle importante), todo ello en un tiempo récord (6 horas).

Liina-refugio-madera-facil-montaje

Liina-refugio-madera-facil-montaje

El nombre de Liina le viene porque su sistema de paneles se ensambla con cintas de nylon (liina en finlandés). Son similares a las que se emplean en el transporte de mercancías. Sus módulos se componen de paneles SIP, compuestos por madera contrachapada y aislante a base de fibra de madera. El montaje de este refugio prefabricado es sencillo (ver vídeo), pues cinco tableros unidos forman una ‘rebanada’ de la casa. Todas tienen la misma geometría, diferenciándose tan solo por los huecos que van dejando para las ventanas. Este sistema permite que en muy poco tiempo se tenga montado el refugio, formando cada parte, abatiéndola y uniéndola al resto hasta completar toda la estructura.

El edificio cuenta con espacio para una cama grande y una litera, otra persona puede dormir en un altillo. Hay una fila de armarios con escritorio, cocina con comedor, y una amplia terraza delantera. A juzgar por las fotos, el interior es bastante digno para una construcción de este tipo, mientras que el acabado exterior consiste en una lona que cubre toda la casa.

El refugio Liina fue diseñado y construido por los estudiantes del Programa de Madera de la Universidad Aalto (Finlandia).

5 COMENTARIOS

  1. Hola… me encanto esta casa. Serian tan amables de proporcionarme mas informacion?? Cuanta madera, planos…etc.
    Un millon de gracias

  2. Me interesa que me amplien información sobre esta vivienda, tengo clientes potenciales en Centro América, agradecería que la información me la hagan llegar cuanto antes.

  3. Well done guys!
    It’s a nice project that for sure will serve as a precedent for the development of transitional dwelling.
    It was very sweet to see how Liina grew up, and how much fun we had in there ;)
    Wish all of you the best!!!

DEJA UNA RESPUESTA

Los datos de carácter personal proporcionados en este formulario serán tratados por Fermín Gómez Fernández, como responsable de esta web. La finalidad es añadir dicho comentario al artículo. La legitimación es tu consentimiento. Destino: los datos facilitados quedan guardados en nuestro servidor, y no son compartidos con terceros. Derechos: Podrás ejercer tus derechos de acceso, rectificación, limitación, y suprimir los datos en blog@is-arquitectura.es, así como el derecho a presentar una reclamación ante una autoridad de control. Hay información adicional y detallada en nuestra Política de Privacidad.

Por favor ingrese su comentario!
Por favor ingrese su nombre aquí

He leído y acepto la política de privacidad de este blog. *

[Todos los comentarios son moderados, ten paciencia, el tuyo se publicará pronto!]