H.O.U.S.E. : casa solar hecha por estudiantes de la Universidad de Nottingham

0
158

Estudiantes de la Universidad de Nottingham diseñaron la primera casa cero-carbón del Reino Unido que puede ser alimentada exclusivamente por energía solar. Se le puso el nombre de H.O.U.S.E. (Home Optimizing the Use of Solar Energy).

Esta casa cumple con el Nivel 6 del Código del Reino Unido para viviendas sostenibles. Posee un diseño en forma en «L», y se desarrolla en dos plantas. Además está pensada para que pueda agruparse en hilera. El equipo de estudiantes trabajó con la constructora Saint-Gobain, que se encargó de proporcionar los materiales y conocimientos necesarios para construir esta casa sostenible.

nottingham-house para el solar decathlon 2010

La casa llegó a exhibirse en Madrid, en el Solar Decathlon Europa 2010. Esto fue posible porque esta Universidad fue seleccionada para participar en dicho evento. Como se puede apreciar en los esquemas y plantas, el proyecto HOUSE se basa en una producción modular prefabricada.

nottingham-house esquema modular prefabricado

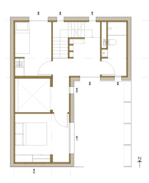
plano planta baja de la HOUSE

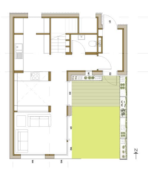
plano planta alta de la vivienda HOUSE

seccion vivienda HOUSE de la Universidad de Nottingham

DEJA UNA RESPUESTA

Los datos de carácter personal proporcionados en este formulario serán tratados por Fermín Gómez Fernández, como responsable de esta web. La finalidad es añadir dicho comentario al artículo. La legitimación es tu consentimiento. Destino: los datos facilitados quedan guardados en nuestro servidor, y no son compartidos con terceros. Derechos: Podrás ejercer tus derechos de acceso, rectificación, limitación, y suprimir los datos en [email protected], así como el derecho a presentar una reclamación ante una autoridad de control. Hay información adicional y detallada en nuestra Política de Privacidad.

Por favor ingrese su comentario!
Por favor ingrese su nombre aquí

He leído y acepto la política de privacidad de este blog. *

[Todos los comentarios son moderados, ten paciencia, el tuyo se publicará pronto!]