Viendo esta primera foto de este post, bien podría decirse que estamos ante la típica casa de madera de lujo. Al menos ese es el estilo que el navegante medio esperaría encontrar al hacer cualquier búsqueda. Pero no es así, pues la Casa Colorado corresponde a una arquitectura de madera al más alto nivel. Lo que encontramos en su interior así lo refleja.
Esta construcción se ubica en una meseta a unos 2.500m de altitud, en Steamboat Springs. El proyecto corresponde a una actuación con tres edificios junto a una alameda. Para ello los clientes exigieron programas con modestos espacios para el día a día, con el fin de minimizar el consumo energético.

Salvo la chimenea (de piedra), la vivienda está construida íntegramente con madera, tanto la estructura como sus revestimientos. Eso le aporta muchas ventajas y beneficios, pero con un estilo que no se deja influenciar por el medio rural. Es una arquitectura muy bien adaptada a su entorno. Sus fachadas presentan amplios huecos acristalados, resultando toda la planta baja muy iluminada.


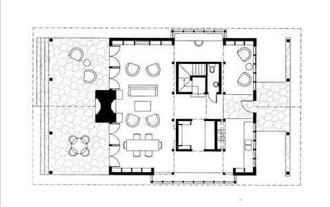
La planta alta alberga los dormitorios, bajo la cubierta a dos aguas. Por eso la casa no adquiere demasiada altura, y aprovecha más su espacio. La ubicación de la escalera es muy original, casi oculto su acceso desde la planta baja, desde un espacio a doble altura. La cocina tiene toda su superficie de trabajo iluminada por una línea continua de ventanas, con vistas a la entrada principal.


La chimenea es doble, por un lado da al salón, pero también permite reuniones agradables en el porche trasero de la vivienda. La organización de su planta general es muy sencilla y obedece a un ordenado equilibrio en su programa, con gran cantidad de pequeños detalles.

Esta casa de madera es un proyecto de Turnbull Griffin Haesloop Architects, una galardonada oficina de arquitectura de San Francisco dirigida por mujeres. Se dedica tanto al diseño residencial como de bodegas, iglesias, o bibliotecas, con especial cuidado por la sostenibilidad.






Esta casa es bellisima, recibe luz en todos los ambientes, es perfecta su iluminacion y combina con el paisaje. Me gustaria que pongan ideas sobre pasaplatos de madera en el estilo de la casa. gracias