Una forma de construir viviendas sostenibles es atender a técnicas pasivas durante su diseño y construcción. Básicamente se trata de edificios muy bien aislados, diseñados para reducir al mínimo posible las pérdidas de calor en invierno y las ganancias en verano. Por eso se valen de técnicas como calor solar pasivo en invierno, por ejemplo. Estas estrategias hacen que se reduzca bastante el consumo de energía en calefacción y refrigeración.

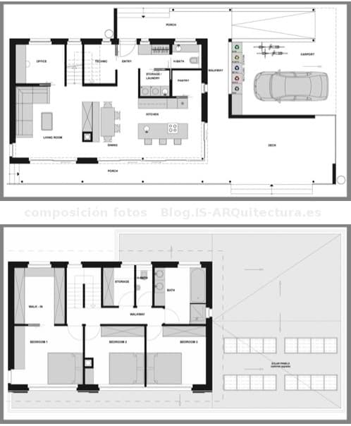
Ya vimos las características de las casas pasivas de Fab-Homes. Es una compañía de Vancouver que se dedica a la construcción de viviendas pasivas, con varios diseños en su catálogo. Permite personalizarlos y ampliarlos en características verdes. Olympia 1 es el modelo más pequeño, pues tiene una superficie de 130m2 (1400 pies cuadrados). Es una casa de dos plantas, con 3 dormitorios y garaje, que surgió del concurso Chain Ecohomes 2009.

Más detalles de Olympia 1
El programa de la vivienda está bastante completo. Nos gustó ver en el garaje el reciclado clasificado de la basura, sin olvidarnos de todos esos espacios (trastero, oficina, armarios, despensa…) que al final uno no sabe dónde poner en una casa, porque sencillamente no fueron previstos en el proyecto. Sí se echa de menos que el dormitorio principal no tenga baño propio. Es cierto que tiene un vestidor inmenso. Este modelo estaría bien completarlo con la recomendación de Fab-Homes, la de añadirle paneles solares en la cubierta del garaje. También se podría emplear una azotea verde, eso ayudaría aún más a reducir su huella de carbono.
Es posible comprar solamente los planos de ejecución de la casa. Se pueden elegir varios paquetes de diseño a partir de la configuración básica, que incluyen los planos y licencia de construcción, una lista de verificación de casa pasiva, e incluso servicios completos de diseño arquitectónico. Fab-Homes los denomina paquetes:
- Starter: 5 set de planos de ejecución, 1 licencia de construcción, y el programa de casa pasiva.
- Compact: al paquete Starter se le añaden 20 horas de diseño y el Passive House Energy Calculation (PHPP).
- Advanced: lo mismo que el paquete Compact, añadiéndole 15 horas más de diseño, 10 horas de Passive House Consulting, y 15 horas de Project Management.

Hay que recordar que Fab-Homes puede hacer también que la vivienda esté desenchufada de los servicios públicos empleando sistemas de energías renovables. Por eso, aparte de tratarse de casas bastante eficientes, ellos hacen un «cálculo de energía de casa pasiva» (PHPP) que dará información suficiente y detallada del consumo energético para tal propósito.






Saludos.
Magnífica entrada, es una pena que no esté más extendida este tipo de construcción, ya que sin ser un genio imagino que el coste de construcción debe ser similar a una construcción digamos normal y estandarizada en España, y sin embargo los benefícicios son increibles.
Gracias por la información y continuar con el trabajo, con el buen trabajo.