Este post tiene que ver con un proyecto de vivienda unifamiliar para una calificación LEED-H* en la ciudad de Bellevue (Washington), conocido por Green Concept Home. En el momento de publicar este artículo ya se habían realizado trabajos para la preparación del terreno, y se esperaba pronto su construcción. El interés por esta casa radica en su diseño (muy atractivo) y en sus características verdes, algunas de las cuales son:
- Panel solar para producción de agua caliente.
- Paneles solares fotovoltaicos.
- Paneles aislados estructurales (SIPs).
- Recogida de aguas pluviales.
- Ventilador de recuperación de calor.
- Calefacción por suelo radiante.
- Suelos de bambú.
- Empleo de materiales reciclados.
- Electrodomésticos eficientes (Energy Star)
- Grifos de bajo caudal de agua.
- Jardines que requieren poco mantenimiento (ahorro de agua).


En principio, la intención no era la producción prefabricada, pero sus creadores dijeron que durante un tiempo funcionará como casa piloto. Así que puede que este Green Concept Home se convierta en algo más serio con el tiempo.

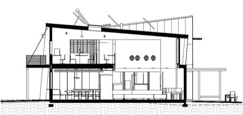
El programa es prácticamente el de una casa de lujo, con espacio a doble altura en el salón (se aprecia en la sección) y una oficina/estudio arriba. Destaca el tamaño del dormitorio principal, excesivo si se compara con las dimensiones del resto de habitaciones.


La casa tendrá una superficie de 264m2, y tiene un coste aproximado de 2.100€/m2, tal vez algo elevado si se compara con modelos de otros constructores.
Green Concept Home es un proyecto de Modus V Studio, un sitio que desapareció.
(*) Sistema que califica la sostenibilidad de las casas.






hola,me gusta este dibujo…me interesa este y soy novato en este tema,me gustarian si me pueden pasar alguna pagina de descarga de render para sketch up….algo asi com un V RAY…..gracias