Estas fotos y planos tienen que ver con una casa prefabricada en Moscú. Se la conoce por DUBLDom 2.110, y está ubicada en las inmediaciones del Embalse Pirogov.

Casa prefabricada en Moscú
La casa fue encargada por una joven pareja que buscaba un hogar para toda la familia. Para ello se pusieron en contacto con DUBLDom, una firma especializada en casas modulares. Debido a que en el catálogo de la compañía no había modelo alguno que se ajustara a las necesidades, tuvieron que encargar un diseño personalizado a un estudio de arquitectura. Así surgió la casa DUBLDom 2.110.
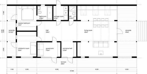
Estamos por tanto ante un proyecto arquitectónico adaptado para construirse en taller. Los arquitectos diseñaron un edificio con cubierta a dos aguas, y fachada frontal completamente acristalada. En su programa de 185m2 hay espacio para un dormitorio principal con baño, y otro para los hijos. Además se ha dispuesto un pequeño cuarto para invitados, y un altillo sobre el distribuidor principal. Este distribuidor conecta con la entrada principal de la casa, y es bastante ancho.

Recibiendo bastante luz natural, encontramos el espacio de vida. Ocupa más de un tercio de toda la superficie de esta casa modular, y en él se distribuye la cocina, comedor y salón. Es un espacio diáfano de madera pintada de blanco, que recibe mucha luz natural desde la fachada delantera y lateral. La cocina está adosada a un muro que es completamente opaco, pero recibe luz desde tres lucernarios. Hay también un cuarto técnico, y un aseo con ducha.
La casa DUBLDom 2.110 está construida principalmente con madera, y materiales de bajo coste, que ayudan a su integración en el entorno natural. La tecnología empleada es sencilla, para evitar que el precio aumentara. Una vez se trasladó al sitio, su montaje se completó en tan solo diez días.


Esta casa prefabricada en Moscú la diseñó el estudio de BIO Architects. La construcción la hizo DUBLdom, una empresa rusa especializada en viviendas modulares a precios asequibles.











