El equipo de California empezó estupendamente la competición del Solar Decathlo 2009 ganando la prueba de Arquitectura. Luego repitió con la de Comunicaciones, y en la recta final del concurso iba en el grupo de cabeza (tercer lugar), junto con Ontario, Alemania, e Illinois. Finalmente fue la casa alemana la que se llevó el triunfo.

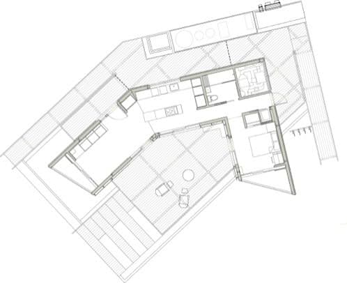
Esta vivienda recibió el nombre de Refract House, y fue creada por estudiantes de la Universidad de Santa Clara (ingeniería) y del California College of the Arts (arquitectura y diseño). Los 74 m2 de la casa se distribuyen en forma de L quebrada, dejando un espacio exterior que funciona como patio. Con esta disposición presenta un buen comportamiento pasivo, con ventanas y persianas controladas de forma automática. Los «balcones» de los extremos están ideados para absorber mucha luz natural, a la vez que protege el interior de la radiación solar directa.

Aspectos de sus instalaciones
Todos los paneles solares están distribuidos en su cubierta inclinada, creando una intersección un tanto peculiar con los planos de fachada. Ese detalle le da aún más carácter a Refract House. El sistema fotovoltaico aporta unos 8,1 kW, y cuenta con calefacción-refrigeración por bomba de calor (aire-agua) para tecnología radiante. El agua caliente se produce por energía solar, pero el agua previamente es calentada por el calor residual de la cámara frigorífica.


La instalación de fontanería se ha realizado para reducir al máximo el desperdicio de agua potable. Por eso se incluye una bomba de re-circulación para drenar el agua tibia cuando hay demanda de agua caliente. Funciona sólo cuando el usuario va a utilizarla, gracias a un sensor de movimiento. Las aguas grises generadas por la casa son filtradas (GPlant) para reutilizarlas para el riego; y las aguas pluviales alimentan un estanque en el jardín.
Usando un iPhone, el equipo de California monitorea en cada momento toda la casa, tanto en temperatura como en iluminación.


Información completa en la página web de Refract House. Hay una colección de fotos en flickr.
 
				




